MODIFICA VIABILITA' PIAZZA A. POLA
 
                            MODIFICA VIABILITA’
PIAZZA POLA – SAN CARLO
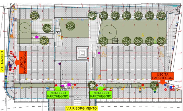
Informiamo la cittadinanza che al fine di migliorare la viabilità ed aumentare la sicurezza stradale a partire da lunedì 03 luglio 2023 sarà modificata la viabilità di Piazza Pola a San Carlo.
L’accesso ad entrambi i parcheggi sarà consentito dagli ingressi adiacenti il monumento di Piazza Pola, mentre le uscite saranno istituite rispettivamente in Via I Maggio e in Piazza Pola (lato parcheggio chiesa). Conseguentemente saranno invertiti i sensi unici di circolazione all’interno dei parcheggi.
POLIZIA LOCALE
PRESIDIO DI TERRE DEL RENO
 
        